สมเด็จพระเทพรัตนราชสุดาฯ สยามบรมราชกุมารี ได้พระราชทานพระราชดำริเกี่ยวกับ “บ้านลอยน้ำ”
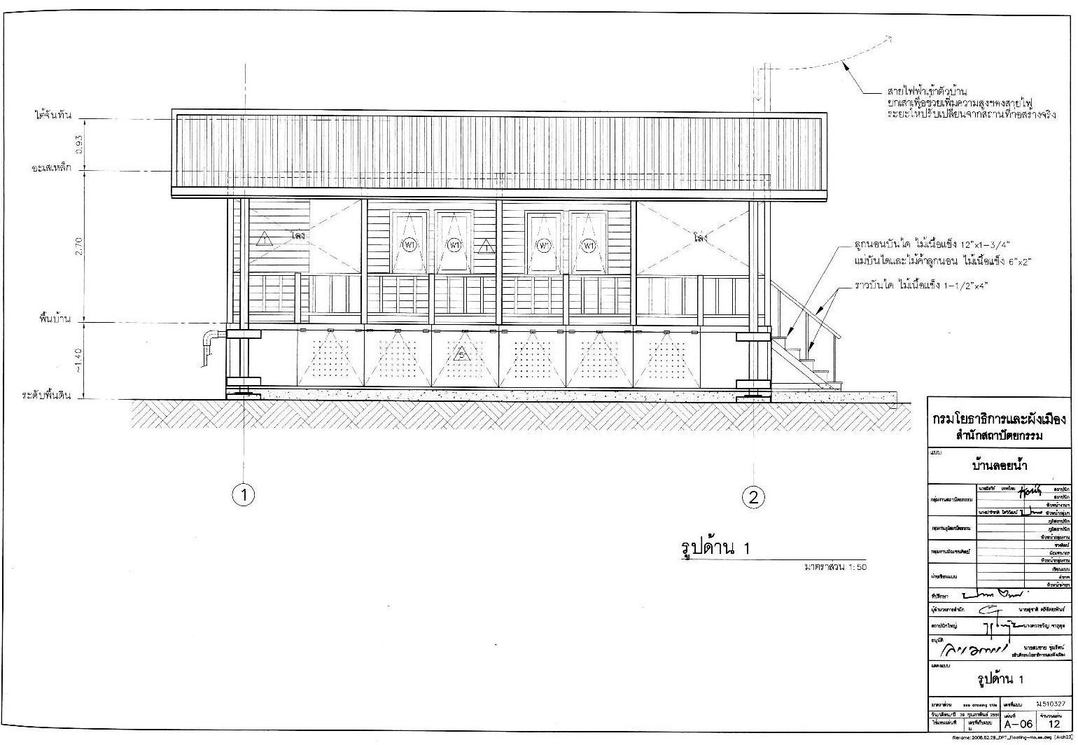
กรมโยธาธิการและผังเมืองจึงได้ออกแบบบ้านหลังนี้ขึ้นโดยปรับใช้แนวคิดจาก “บ้านลอยน้ำท่าขนอน” และเรือนแพของชาวบ้านในอดีต นำมาประยุกต์ใช้กับสภาพแวดล้อมในปัจจุบัน ซึ่งในฤดูแล้งตัวบ้านจะตั้งอยู่บนพื้นดินตามปกติ แต่เมื่อมีน้ำท่วมก็จะลอยขึ้นตามระดับน้ำได้ โดยจะมีการยึดตัวบ้านไว้กับเสาหลักทั้งที่มุมเพื่อป้องกันการโคลงตัวหรือลอยไปตามกระแสน้ำ และเมื่อระดับน้ำลดลงตัวบ้านก็จะกลับมาตั้งอยู่บนพื้นดินตามเดิม
ขนาดของบ้านลอยน้ำที่ได้ออกแบบขึ้นนี้ตั้งอยู่บนพื้นฐานของขนาดวัสดุสำเร็จรูปที่มีขายอยู่ทั่วไปในท้องตลาด เพื่อให้เป็นการใช้วัสดุที่คุ้มค่าที่สุดเท่าที่จะทำได้ซึ่งสามารถประยุกต์ใช้และทำการก่อสร้างได้ง่าย เนื่องจากมีระบบวิศวกรรมโครงสร้างเป็นรูปแบบอย่างง่าย ชาวบ้านที่มีความรู้ด้านช่างในระดับทั่วไปก็จะสามารถดำเนินการก่อสร้างได้เอง
บ้านหลังนี้มีขนาดพื้นที่รวมประมาณ 60 ตารางเมตร ซึ่งเป็นขนาดที่ไม่ใหญ่มาก เพื่อความสะดวกในการก่อสร้างและการลอยน้ำแต่หากมีความต้องการพื้นที่เพิ่มขึ้นก็อาจเชื่อมต่อหลายหลังเข้าด้วยกัน โดยใช้สะพานทางเชื่อมพาดระหว่างชานรอบตัวบ้าน
สำหรับราคาค่าก่อสร้างประมาณการได้ว่ากรณีดำเนินการก่อสร้างเองจะมีราคาประมาณหลังละ 719,000 บาท หากจ้างเหมาราคาประมาณหลังละ 915,000 บาทเนื่องจากต้องมีการคิดค่าดำเนินการ กำไรและภาษีด้วย
แบบบ้านลอยน้ำของกรมโยธาธิการและผังเมืองนี้ น่าจะเป็นแนวทางหนึ่งที่จะช่วยบรรเทาความเดือดร้อนของประชาชนที่ต้องอยู่อาศัยในพื้นที่ที่อาจต้องประสบภัยน้ำท่วมตามฤดูกาลได้เป็นอย่างดี โดยเฉพาะอย่างยิ่งผู้อยู่อาศัยในบริเวณที่เป็นที่ลุ่ม โดยอาจปรับปรุงเปลี่ยนแปลงรูปแบบและพื้นที่ใช้สอยให้มีความเหมาะสมและสอดคล้องตามความต้องการที่แท้จริงของตนเองต่อไป
แก้ปัญหาน้ำท่วมด้วยบ้านลอยน้ำ
แบบบ้านลอยน้ำ
|
|
|
|
|
|
|
|
|
|
















